Trilocale con cantina - Box auto e posto auto condominiale

Gambolo' (Pavia)

Rif: IMMO-125294999
Condividi Linkedin Whatsapp Stampa
€ 78.000
Appartamento
90 Mq
3 Vani
Classe energetica G
2 Camere
1 bagno
Garage
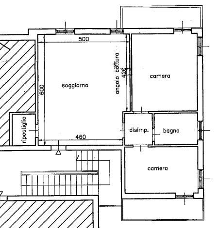
Proponiamo questo luminoso appartamento dotato di tripla esposizione al secondo piano senza ascensore. L'appartamento è composto dall'ampia zona giorno con angolo cottura a vista e dal comodo ripostiglio; la zona notte è composta da due camere entrambe con balcone e dal bagno con doccia. Completano la proprietà la cantina, il Box autorimessa e un posto auto condominiale.
Per maggiori informazioni e visite potete contattarci con le seguenti modalità:
tel. 349 6210183 - 02 90834376
mail: ufficiorosate@gmail.com
www.corradocalvi.it

VALUTAZIONI GRATUITE DEL VOSTRO IMMOBILE

Dettaglio immobile

Contratto Vendita
Rif IMMO-125294999
Prezzo € 78.000
Provincia Pavia
Comune Gambolo'
Indirizzo Corso Umberto i 59
Superficie 90 mq
Vani 3
Camere 2
Bagni 1
Classe energetica G (DL 192/2005)
EPI 262.77 kwh/m2 anno
Piano 2 / 2
Riscaldamento centralizzato
Condizioni abitabile
Spese condominiali € 169
Anno di costruzione 1974
Ascensore no
Garage 14 mq
Cantina 4 mq
Parcheggio 13 mq
Cucina a vista
Balcone si

Consistenze

Descrizione Superficie Sup. comm.
Principali
Immobile - 2° piano 77 Mq 77 Mqc
Box/Garage - piano terra 14 Mq 7 Mqc
Posto auto 13 Mq 5 Mqc
Cantina - piano terra 4 Mq 1 Mqc
Totale 90 Mqc

Planimetrie

Richiedi maggiori informazioni

Autorizzazione al trattamento dei dati personali+
Dichiaro di aver letto l'informativa sulla privacy ed accetto le condizioni d'utilizzo del servizio.
Riempi il campo con il codice riportato nell'immagine*
Codice Captcha
Chiamaci Contattaci